Atención Inversores ! 4 unidades con Renta Activa en Maldonado

47 Leonel, Maldonado

U$S 160.000

Dormitorios 2 Dormitorios
Baños 1 Baños
Superficie Edificado 170 m2
Superficie de Terreno 370 m2

Descripción

Atención Inversores ! 4 unidades con Renta Activa en Maldonado
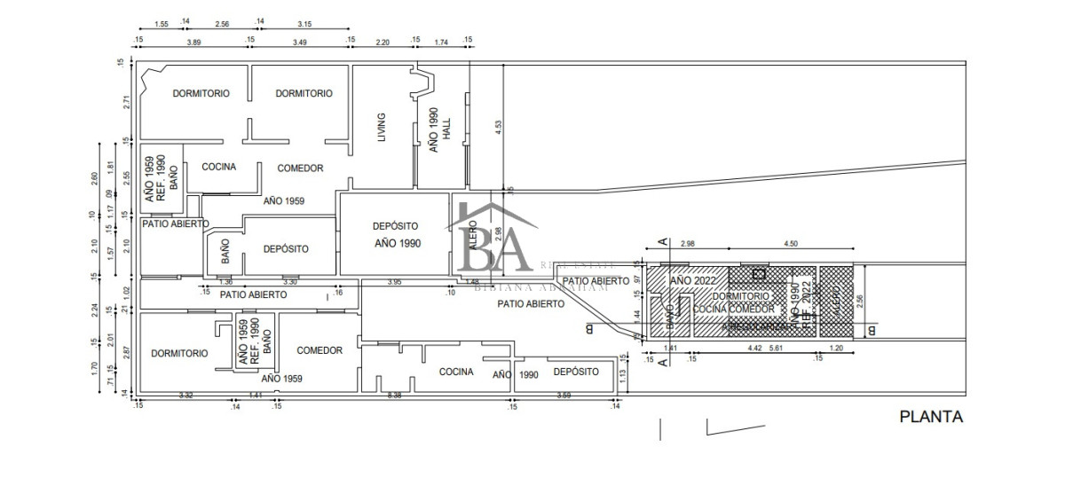
Terreno con 4 unidades – renta activa – Maldonado

Propiedad ubicada en Maldonado, barrio Leonel, sobre un terreno de 370 m², que cuenta con 4 unidades habitacionales independientes, actualmente todas alquiladas, generando una renta mensual de USD 1.000.

Las unidades se desarrollan en distintas etapas constructivas y suman aproximadamente 170 m² edificados, con tipologías de 1 y 2 dormitorios, cocinas, baños y patios abiertos que aportan buena ventilación y luminosidad.

Una oportunidad ideal para inversores, con renta inmediata y posibilidad de mejora o desarrollo futuro.

Datos destacados:

Terreno: 370 m²
Superficie construida: ~170 m²
4 unidades habitacionales
Renta actual: USD 1.000 mensuales
Precio de venta: USD 120.000
Contribución inmobiliaria: USD 315

Excelente relación precio–renta, en una zona consolidada de Maldonado, próxima a servicios y con buena demanda de alquiler.
Contáctame, no dejes pasar esta oportunidad !

Detalles de la Propiedad

  • Barrio Leonel
  • Orientacion Norte
  • Terreno m2 370
  • Edificado m2 170
  • Dormitorios 2
  • Baños 1
  • Cocina Cocina
  • Living Comedor Si
  • Estacionamiento Estacionamiento
  • Cantidad de Plantas 1
  • Propiedad Horizontal Si

Gastos y Impuestos

  • Imp.Inmobiliario: $ 11.850